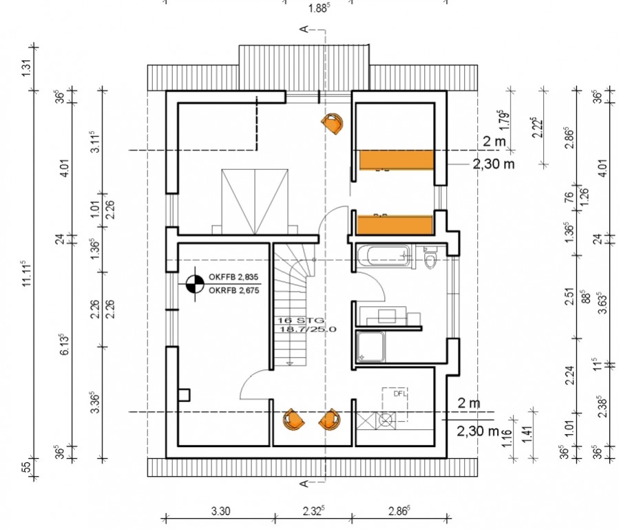
Zweifamilienhaus

 

  
 

 

Dieses Projekt sieht ein großzügiges Schlafzimmer mit begehbarem Kleiderschrank vor.
Detaillierte Pläne unserer Referenzen stellen wir Ihnen gerne persönlich vor.