Die Vorbereitungen für Ihr neues Zuhause beginnen mit der gut durchdachten Planung.
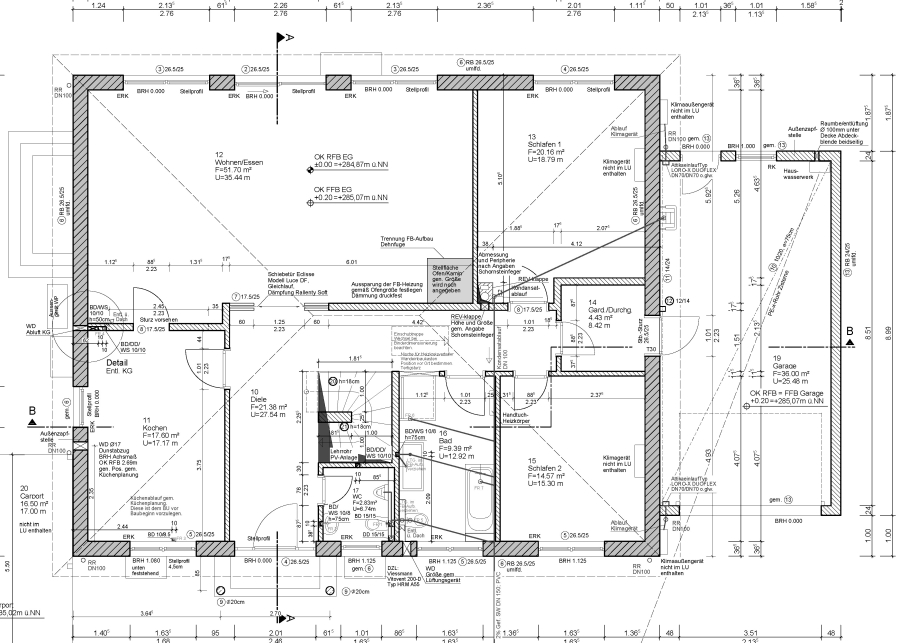
Großzügige, lichtdurchflutete Räume mit bodentiefen Fenstern geben viel Raum für die individuelle Gestaltung Ihres Lebens(t)raums.

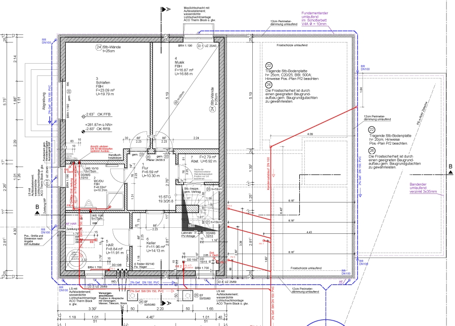
Dieses Beispiel zeigt ein großzügiges Einfamilienhaus mit Carport und Garage.
Detaillierte Pläne unserer Referenzen stellen wir Ihnen gerne persönlich vor.

